Skip to Content
Realtors Sign Up for exclusive listings

Lewis Plan

Heritage Collection

Hunters Ridge | Marion,

Contact For Pricing

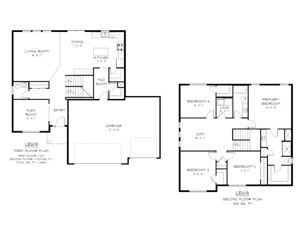
The Lewis is a two-story home designed for modern family living. A main-level flex space opens into a flowing great room and U-shaped kitchen with oversized island and large pantry. Off the garage entry you’ll find a mudroom with lockers, built-in charging station, and drop zone. Upstairs, a loft and laundry area sit among the secondary bedrooms, while the primary suite includes space for dual sinks, a walk-in shower, and a generous walk-in closet.

The Lewis is a two-story home designed for modern family living. A main-level flex space opens into a flowing great room and U-shaped kitchen with oversized island and large pantry. Off the garage entry you’ll find a mudroom with lockers, built-in charging station, and drop zone. Upstairs, a loft and laundry area sit among the secondary bedrooms, while the primary suite includes space for dual sinks, a walk-in shower, and a generous walk-in closet.

  • Main floor flex room
  • Open u-shaped kitchen with large pantry
  • Garage entry features large mud room and closet
  • Second floor loft space
  • Second floor laundry
  • Large closets for additional storage
  • Spacious master suite features walk in shower, large walk in closet, space for dual sinks and linen storage
4 Beds +Flex
2.5 Baths
3 Garages
2,460 Sq. Ft.
Lewis
Lewis
Lewis

Floorplans

Lewis
Heritage Collection

Our signature creations showcase the craftsmanship, style, and vision that define every home we build. Explore a collection that reflects beauty, function, and individuality in every space.

We’re here to guide you.

Need Help? Just Ask!

Maggie McCarthy
Skogman Homes
Please provide your first name.
Please provide your last name.
Please provide a valid email address.
Please provide a valid phone number.

( * Required Fields )

Explore Other Communities

Communities Offering
This Home Plan

Interested in the Lewis Plan? Explore other communities where this popular design is available. Each community offers its own unique setting and amenities, giving you more options to find the perfect place to call home.

Sales Info

Let’s Talk or Take a Tour!

Jessie Arp

New Homes Specialist

Want to Take a Tour?

(319) 727-8782

Mobile: (319) 727-8782

jessie@skogman.com


Mary Zalesky

New Homes Specialist

Want to Take a Tour?

(319) 727-8782

Mobile: (319) 727-8782

maryz@skogman.com

Skogman Homes

Sales Office

8750 Yeager Ln NE, Cedar Rapids,

maryz@skogman.com

Office Hours

Please visit us 7 days a week at our model home, 8750 Yeager Ln NE, Cedar Rapids. Our model hours are 11:30 AM - 3:30 PM

Call ahead to ensure we have time to meet, or if you need to schedule outside of office hours, please call Mary Zalesky (319) 521-9701  

Driving Directions