Skip to Content
Realtors Sign Up for exclusive listings

Windsor Plan

Summit Collection

Prairie Landing | Cedar Rapids,

Contact For Pricing

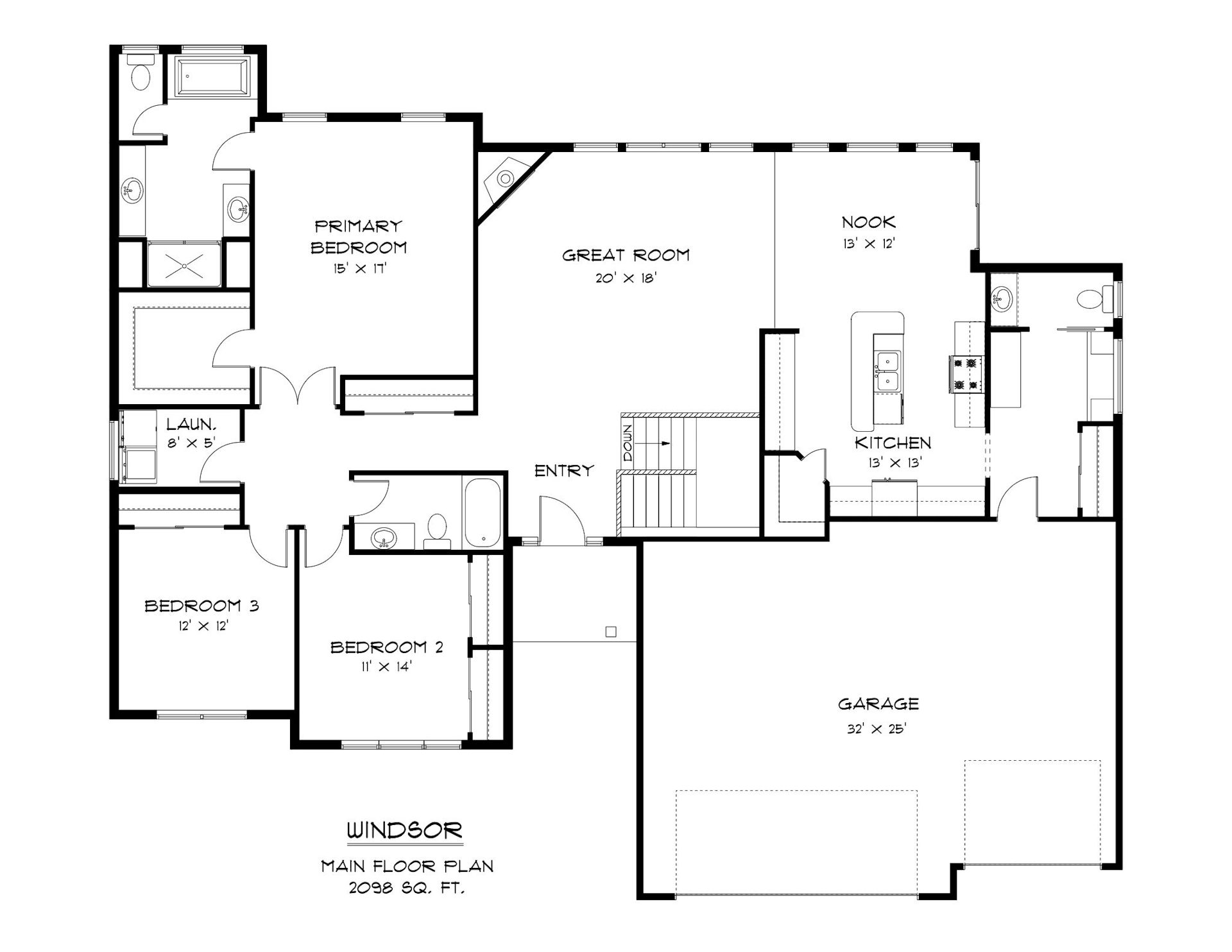
The Windsor is an open-concept ranch home with a three-stall garage and a mudroom entrance. The kitchen includes a corner pantry and flows into the living space, while the master suite features dual vanities and a large walk-in closet. The layout places the laundry near all bedrooms for efficiency.

The Windsor is an open-concept ranch home with a three-stall garage and a mudroom entrance. The kitchen includes a corner pantry and flows into the living space, while the master suite features dual vanities and a large walk-in closet. The layout places the laundry near all bedrooms for efficiency.

  • Open-Concept Ranch
  • Mudroom Located Off the Three-Stall Garage
  • Kitchen Contains a Corner Pantry For Your Storage Needs
  • Laundry Conveniently Located By All The Bedrooms
  • Master Bedroom has an On-Suite Bathroom with Two-Separate Vanities
  • Master Bedroom Also Has Large Walk-In Closet for Your Wardrobe
  • HERS Rated Energy Efficient Home
3 Beds
2.5 Baths
3 Garages
2,098 Sq. Ft.
Windsor
Windsor
Windsor

Floorplans

Windsor
Summit Collection

Our signature creations showcase the craftsmanship, style, and vision that define every home we build. Explore a collection that reflects beauty, function, and individuality in every space.

We’re here to guide you.

Need Help? Just Ask!

Maggie McCarthy
Skogman Homes
Please provide your first name.
Please provide your last name.
Please provide a valid email address.
Please provide a valid phone number.

( * Required Fields )

Explore Other Communities

Communities Offering
This Home Plan

Interested in the Windsor Plan? Explore other communities where this popular design is available. Each community offers its own unique setting and amenities, giving you more options to find the perfect place to call home.

Sales Info

Let’s Talk or Take a Tour!

Jessie Arp

New Homes Specialist

Want to Take a Tour?

(319) 727-8782

Mobile: (319) 727-8782

jessie@skogman.com


Mary Zalesky

New Homes Specialist

Want to Take a Tour?

(319) 727-8782

Mobile: (319) 727-8782

maryz@skogman.com

Skogman Homes

Sales Office

8750 Yeager Ln NE, Cedar Rapids,

Office Hours

Please visit us 7 days a week at our model home, 8750 Yeager Ln NE, Cedar Rapids. Our model hours are 11:30 AM - 3:30 PM

Call ahead to ensure we have time to meet, or if you need to schedule outside of office hours, please call Mary Zalesky (319) 521-9701 or Jessie Arp (319) 450-2989. 

Driving Directions